Solusi
Horse Construction menawarkan rangkaian lengkap material perkuatan struktur dengan dukungan teknis, dukungan dokumentasi, dukungan produk, dukungan perangkat lunak, dukungan proyek.
Carbon fiber reinforced polymer
Project Overview
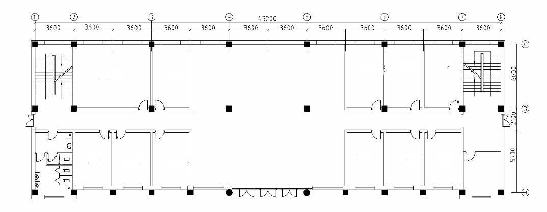
An office building was originally designed as a four-story reinforced concrete frame structure with a basement, and a reinforced concrete retaining wall around the basement. The foundation was a single base band waterproof board under the column. It was completed in 1996 and has a total construction area of 312,416 square meters. The concrete designation of beam and column is C30, and the seismic fortification intensity is 8 degrees. The height from the basement to the fourth floor is 3.9, 4.2, 3.6, 3.3, and 3.3m, respectively. The plan of the first floor is shown in Figure 1. In 2006, due to business needs, it was approved to add two floors above to become a six-story basement building, of which the fifth floor height was 3.3m and the six floor height was 5.1m.

Determination of reinforcement plan
The axial compression ratio of the column is an important factor that affects the failure shape and deformation ability of the column. The greater the axial compression ratio of the column, the smaller the deformation capacity of the column. In the case of high axial compression ratio, multi-reinforcement can not effectively change the ductility of the column. Therefore, the column must be reinforced to limit the axial compression ratio of the column.
The axial compression ratio of the middle column in the basement and part of the first floor needs to be strengthened, and the beam meets the requirements. The column reinforcement design considers the following options:
(1) Reinforcement of reinforced concrete column enclosure
(2) Reinforcement of concrete-filled steel tube columns
(3) Carbon fiber reinforced polymer reinforcement
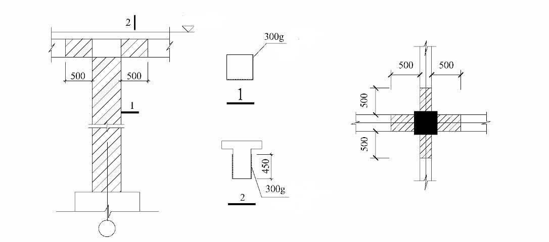
Considering various factors such as engineering cost, construction damage to the original basement decoration and construction period, the final decision was made to reinforce the concrete column and beam-column joints by using in-vitro reinforced carbon fiber reinforced polymer reinforcement technology that is convenient for construction and does not change the size of the components.
This project uses Horse carbon fiber reinforced polymer for reinforcement, and the tensile strength is 3600MPa. The elastic modulus is 230,000 MPa. The thickness of the single layer is 01167mm. The carbon fiber is wrapped with full height and no gap.

After being reinforced with carbon fiber reinforced polymer, the compression capacity of the concrete column has been significantly improved.The axial compression ratio can therefore meet the axial compression ratio limit of the frame structure column of 8 degrees in the specification, which shows that the carbon fiber reinforcement can effectively improve the compression capacity of the concrete column.

Conclusion
The project was completed and used in October 2006 after adding layers and strengthening. After one year of use, there is no abnormality in the reinforced parts, and the building is used normally, which is praised by the owner. Through the practice of this project, we see:
(1) First of all, when adding layers to the original structure, the choice of scheme is extremely important. A suitable solution can obtain the most satisfactory results after the least amount of reinforcement.
(2) Secondly, for the concrete column that does not meet the requirements of seismic ductility, carbon fiber reinforced polymer can be used to wrap the surface of the column for reinforcement. This method is simple in construction, short in construction period, and does not affect the function of the building.
Anda dapat menemukan segala yang Anda butuhkan di sini. Percayalah dan cobalah produk - produk ini, Anda akan menemukan perbedaan yang besar setelah itu.
Lembaran serat karbon Horse Construction digunakan untuk perkuatan struktural, perbaikan, dan perbaikan substrat beton, pasangan bata, baja, dan kayu pada bangunan, jembatan, jalan raya, rel kereta api, terowongan, dermaga, dan bandara sipil.
Viskositas rendah, impregnasi yang baik, dengan sifat tiksotropik tertentu, digunakan untuk impregnasi dan pasta permukaan komponen yang diperkuat dan produk serat. Peran perekat serat karbon Horse adalah untuk sepenuhnya meresap ke dalam produk serat, dan
Serat karbon Horse Construction digunakan untuk perkuatan struktural, perbaikan, dan perbaikan substrat beton, pasangan bata, baja, dan kayu pada bangunan, jembatan, jalan raya, rel kereta api, terowongan, dermaga, dan bandara sipil.